4-к, Спортивная, 3 Показать на карте
Рошаль
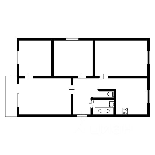
Вашему вниманию уютная 4-комнатная квартира в центре г. Рошаль (Московская область) Общая площадь 77,4 м2 плюс застекленная лоджия 5,1 м2.Идеальный вариант для семьи. ПРЕИМУЩЕСТВА :— Площадь: 4 комнаты, совмещённый санузел, просторная застеклённая лоджия. — Расположение: 1-й этаж пятиэтажного кирпичного дома. Окна выходят на две стороны (сквозная планировка). — Ремонт: современная отделка с натяжными потолками и точечным освещением, новая металлическая входная дверь, пластиковые окна во всех помещениях. — Оснащение: качественная мебель, плиточное покрытие на полу, встроенная кухонная техника (холодильник, посудомоечная и стиральная машины, морозильная камера). — Коммуникации: центральное отопление.ПРЕИМУЩЕСТВА ДОМА:— Инфраструктура: в шаговой доступности — рынок, магазины, школа, детский сад, спортивный комплекс, кинотеатр, автобусная остановка. — Отдых: в 2 минутах ходьбы — благоустроенный пляж на озере Юбилейное. — Двор: детская площадка у подъезда, множество парковочных мест.Прямая продажа(один собственник), более 5 лет в собственности. Оперативный выход в сделку.Просмотр по предварительной договоренности.Квартира готова к комфортному проживанию.Звоните, отвечу на все интересующие вас вопросы!Предоставляем услуги по одобрению ипотеки.
82 м2
1 / 5 этаж
Кирпич
- Показать контакты
- Добавить в избранное
82 м2
1 / 5 этаж
Кирпич
6 300 000
76 364 /м2
